Добро пожаловать на http://vipplan.ru

Випплан Егорьевск - это тысячи проектов домов в нашем каталоге!

Вы всегда сможете найти для себя проект дома вашей мечты! Даже если этого не случилось, мы готовы в любую минуту предложить проект индивидуального дома.

Забыли пароль?
Вы еще не регистрировались?

Перейдите по ссылке ниже на страницу регистрации.

Регистрация...

Внимание!!!

В проектную документацию могут быть внесены изменения любой сложности, в соответствии в Вашими пожеланиями!

Полезные статьи

Приготовление раствора для наливного пола

Если вы хотите чтобы пол получился ровным, наливные полы – лучший вариант. Особое внимание следует уделить приготовлению раствора. А все потому, что после нанесения на цементную стяжку или бетонное основание внести коррективы или изменить что-либо уже не получится. Поэтому к замешиванию раствора стоит подходить очень внимательно....

Советы по проектированию дома

Представляем Вашему вниманию несколько советов по проектированию дома. Все что касается выбора участка, размещению дома на участке, подбора проекта на строительство дома, советы по выбору технологии строительства и материалов и т.д....

Проекты домов и коттеджей > Каталог проектов домов > Проект уютного коттеджа с мансардой Vg985

Проект уютного коттеджа с мансардой Vg985

Проект уютного коттеджа с мансардой
Зарегистрируйтесь

Проект № Vg985


Техническое описание
Общая площадь: 145.21 м2
Жилая площадь: 102.2 м2
Высота здания: 8.52 м
Размеры дома: 9.04м×10.04м
Кол-во комнат: 5
Цокольный этаж: нет
Гараж: нет
Мансарда: есть

Kонструкция
Фундамент: Плита
Перекрытия: Деревянные балки
Материал стен: Керамоблок

Архитектурный раздел
Конструктивный раздел

Смета на строительство
АР+КР - 52 000 (Со скидкой 20%)
Проект индивидуального одноэтажного жилого дома с размерами 9,04х10,04 м. Наружная отделка здания – штукатурка. Цоколь – клинкерная плитка. Фундамент – фундаментная плита Наружные стены запроектированы из: керамического блока Внутренние стены и перегородки: из керамического блока Перекрытие межэтажное – деревянные балки перекрытия. Материал кровли – металлочерепица. Окна - металлопластиковые, выполненные по индивидуальному заказу.
Генплан застройки участка / Паспорт проекта 7000 руб / 10000 руб
Инженерный раздел (полный) 72500 руб
Смета на строительство 27188 руб (36250 руб)
Теплотехнический расчет материалов стен Бесплатно
Стоимость проекта со незначительнми изменениями 61350 руб
Стоимость проекта со средними изменениями* 72300 руб
Стоимость проекта со значительными изменениями** 75200 руб

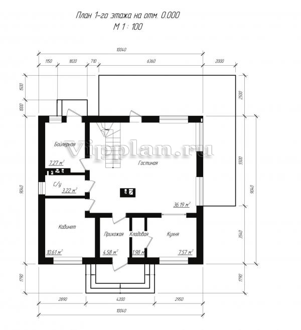
План первого этажа


Прихожая — 4,58 м2
Кладовая — 1,98 м2
Гостиная — 36,19 м2
Кухня — 7,57 м2
Кабинет — 10,61 м2
С/у — 3,22 м2
Бойлерная — 7,27 м2

План мансардного этажа


Холл — 10,64 м2
Спальня — 18,60 м2
Спальня — 18,43 м2
Спальня — 18,37 м2
С/у — 7,76 м2
Проект уютного коттеджа с мансардой Проект уютного коттеджа с мансардой Проект уютного коттеджа с мансардой Проект уютного коттеджа с мансардой

Модификации проектов

Внесение изменений и привязка к участку строительства

В любой из проектов от компании VIPplan - Егорьевск по вашему желанию могут быть внесены изменения в материалы стен, материалы наружной отделки дома, а также будет произведена адаптация проекта под конкретный регион строительства (с учетом грунтов региона, геологических особенностей вашего участка и местных климатических условий) - БЕСПЛАТНО !!! (кроме проектов со скидкой и проектов наших партнеров).

Любой из проектов, размещенных на сайте egorevsk.vipplan.ru мы можем выполнить из требуемых вам строительных материалов: ячеистый бетон (газобетон, пеноблок), керамоблок, кирпич, шлакоблок, бетонный блок, дерево (брус, клееный брус), каркасная технология (деревянный каркас, металлокаркас (ЛСТК)).

Фасад дома и его наружную отделку так же возможно выполнить с применением различных облицовочных материалов: структурной штукатурки, (с утеплителем и без), сайдингом (пластиковый или металлосайдинг), фиброплитами, кирпича.

 
6 Избранные
проекты

Доставка проектов по России: Москва (Московская область), Санкт-Петербург (Ленинградская область), Краснодар, Ростов-на-Дону, Ставрополь, Сочи, Волгоград, Новосибирск, Белгород, Брянск, Воронеж, Саратов, Хабаровск, Астрахань, Нальчик, Владикавказ, Екатеринбург, Тюмень, Самара, Нижний Новгород, Казань, Пермь, Уфа, Челябинск, Красноярск, Ханты-Мансийск, Иркутск, Курган, Оренбург, Омск, Томск, Барнаул, Новокузнецк, Кемерово, Абакан, Чита, Якутск, Южно-Сахалинск, Петропавловск-Камчатский и страны ближнего зарубежья: Белоруссия, Украина, Казахстан