Добро пожаловать на http://vipplan.ru

Випплан Егорьевск - это тысячи проектов домов в нашем каталоге!

Вы всегда сможете найти для себя проект дома вашей мечты! Даже если этого не случилось, мы готовы в любую минуту предложить проект индивидуального дома.

Забыли пароль?
Вы еще не регистрировались?

Перейдите по ссылке ниже на страницу регистрации.

Регистрация...

Внимание!!!

В проектную документацию могут быть внесены изменения любой сложности, в соответствии в Вашими пожеланиями!

Полезные статьи

Виды фундаментов

Можно смело сказать, что самое главное качество фундамента - надежность. Фундамент дома бывает нескольких видов. Все они отличаются прочностью, технологией закладывания и областью использования. Запомните, экономить на фундаменте – плохая идея. Затраты на ремонт будут огромными, а зачастую в случае нарушения технологии закладки фундамента исправить ошибку будет невозможно....

Выбор сайдинга

Прежде чем купить сайдинг, нужно определиться зачем он нужен: для защиты фасада от непогоды, для придания привлекательности внешнему виду дома или для утепления дома.Что же из себя представляет сайдинг? Сайдинг – это материал для облицовки фасада из компаунда. В данной статье мы поможем Вам определиться выбором сайдинга для отделки фасада дома...

Проекты домов и коттеджей > Каталог проектов домов > Проект просторного одноэтажного дома с чердаком Vg174

Проект просторного одноэтажного дома с чердаком Vg174

Проект просторного одноэтажного дома с чердаком
Зарегистрируйтесь

Проект № Vg174


Техническое описание
Общая площадь: 122 м2
Высота здания: 8.81 м
Размеры дома: 16м×10м
Кол-во комнат: 5
Цокольный этаж: нет
Гараж: нет
Мансарда: есть

Kонструкция
Фундамент: Ленточный монолитный ж/б («щелевой»)
Отделка дома: Наружная отделка здания – декоративная фасадная штукатурка, клинкерная плитка, сайдинг.
Перекрытия: Газобетонные блоки
Материал стен: Газобетонные блоки

Архитектурный раздел
Конструктивный раздел
АР+КР - 48 000 (Со скидкой 20%)


Проект индивидуального одноэтажного жилого дома с чердаком с размерами 15.86 x 10.16 м. 
Наружная отделка здания – декоративная фасадная штукатурка, клинкерная плитка, сайдинг.
Отделка цоколя – клинкерная плитка.
Фундамент – ленточный монолитный ж/б («щелевой»).
Наружные стены запроектированы из газобетонных блоков и утеплителя с отделкой декоративной фасадной штукатуркой, клинкерной плиткой и сайдингом.
Внутренние стены – из газобетонных блоков.
Перегородки – из газобетонных блоков.
Пол 1-го этажа – пол по грунту.
Перекрытие чердачное – по деревянным балкам с использованием теплошумоизоляционных материалов.
Крыша - двускатная. Материал кровли – профнастил.
Окна - металлопластиковые, выполненные по индивидуальному заказу. 
 
 
 
Технико-экономические показатели
 
Общая площадь помещений  - 121,7 м2
Этажность — 1, чердак
Высота здания — 8,81 от отметки уровня земли до конька
 

Генплан застройки участка / Паспорт проекта 7000 руб / 10000 руб
Инженерный раздел (полный) 61000 руб
Смета на строительство 30500 руб
Теплотехнический расчет материалов стен Бесплатно
Стоимость проекта со незначительнми изменениями 56950 руб
Стоимость проекта со средними изменениями* 66100 руб
Стоимость проекта со значительными изменениями** 68500 руб

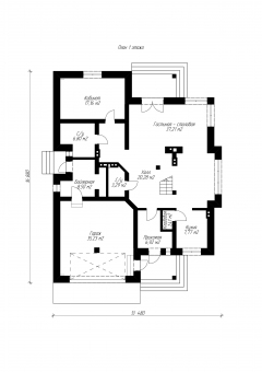
План первого этажа


Прихожая - 4,20 м2
Холл - 6,30 м2
Коридор - 5,60 м2
Спальня - 16,32 м2
Спальня - 15,54 м2
Спальня - 11,70 м2
Спальня - 14,84 м2
С/у - 5,59 м2
С/у - 2,20 м2
Гостиная - 25,62 м2
Кладовая - 3,65 м2
Кухня - 10,15 м2
Крыльцо - 10,45 м2

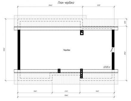
План мансардного этажа


Чердак - 129,89 м2
Проект просторного одноэтажного дома с чердаком Проект просторного одноэтажного дома с чердаком Проект просторного одноэтажного дома с чердаком Проект просторного одноэтажного дома с чердаком
Внесение изменений и привязка к участку строительства

В любой из проектов от компании VIPplan - Егорьевск по вашему желанию могут быть внесены изменения в материалы стен, материалы наружной отделки дома, а также будет произведена адаптация проекта под конкретный регион строительства (с учетом грунтов региона, геологических особенностей вашего участка и местных климатических условий) - БЕСПЛАТНО !!! (кроме проектов со скидкой и проектов наших партнеров).

Любой из проектов, размещенных на сайте egorevsk.vipplan.ru мы можем выполнить из требуемых вам строительных материалов: ячеистый бетон (газобетон, пеноблок), керамоблок, кирпич, шлакоблок, бетонный блок, дерево (брус, клееный брус), каркасная технология (деревянный каркас, металлокаркас (ЛСТК)).

Фасад дома и его наружную отделку так же возможно выполнить с применением различных облицовочных материалов: структурной штукатурки, (с утеплителем и без), сайдингом (пластиковый или металлосайдинг), фиброплитами, кирпича.

 
6 Избранные
проекты

Доставка проектов по России: Москва (Московская область), Санкт-Петербург (Ленинградская область), Краснодар, Ростов-на-Дону, Ставрополь, Сочи, Волгоград, Новосибирск, Белгород, Брянск, Воронеж, Саратов, Хабаровск, Астрахань, Нальчик, Владикавказ, Екатеринбург, Тюмень, Самара, Нижний Новгород, Казань, Пермь, Уфа, Челябинск, Красноярск, Ханты-Мансийск, Иркутск, Курган, Оренбург, Омск, Томск, Барнаул, Новокузнецк, Кемерово, Абакан, Чита, Якутск, Южно-Сахалинск, Петропавловск-Камчатский и страны ближнего зарубежья: Белоруссия, Украина, Казахстан