Добро пожаловать на http://vipplan.ru

Випплан Егорьевск - это тысячи проектов домов в нашем каталоге!

Вы всегда сможете найти для себя проект дома вашей мечты! Даже если этого не случилось, мы готовы в любую минуту предложить проект индивидуального дома.

Забыли пароль?
Вы еще не регистрировались?

Перейдите по ссылке ниже на страницу регистрации.

Регистрация...

Внимание!!!

В проектную документацию могут быть внесены изменения любой сложности, в соответствии в Вашими пожеланиями!

Полезные статьи

Применение свайных фундаментов

Сваи представляют собой длинные стержни, погруженные глубоко в грунт или изготовленные непосредственно в грунте. Покупные сваи с одной стороны имеют заостренный конец, который забивается в почву с помощью специальной техники. Установка свай, изготовленных своими руками, предполагают бурение скважин, армирование и заливку бетонного раствора. ...

Выбор сайдинга

Прежде чем купить сайдинг, нужно определиться зачем он нужен: для защиты фасада от непогоды, для придания привлекательности внешнему виду дома или для утепления дома.Что же из себя представляет сайдинг? Сайдинг – это материал для облицовки фасада из компаунда. В данной статье мы поможем Вам определиться выбором сайдинга для отделки фасада дома...

Проекты домов и коттеджей > Каталог проектов домов > Баня с террасой Vg1160

Баня с террасой Vg1160

Баня с террасой
Зарегистрируйтесь

Проект № Vg1160


Техническое описание
Общая площадь: 46.82 м2
Высота здания: 5.47 м
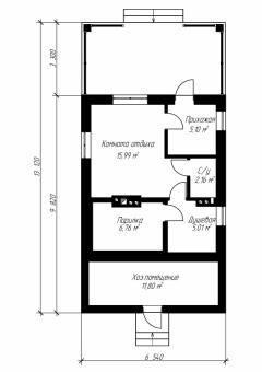
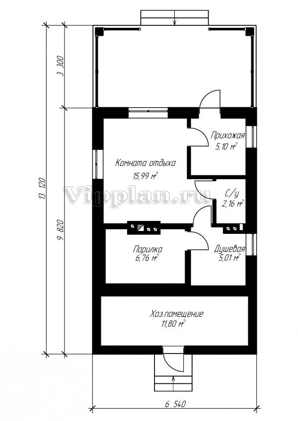
Размеры дома: 13.12м×6.54м
Кол-во комнат: 1
Цокольный этаж: нет
Гараж: нет
Мансарда: нет

Kонструкция
Фундамент: Ленточный монолитный ж/б
Перекрытия: Деревянные
Материал стен: Газобетон

Архитектурный раздел
Конструктивный раздел
АР+КР - 36 000 (Со скидкой 20%)
Индивидуальный проект бани с размерами здания 13,12 х 6,54 м. Наружная отделка здания – штукатурка.. Фундамент – ленточный монолитный ж/б (под несущими стенами). Наружные стены – газобетонные блоки, штукатурка. Внутренние стены - из газобетонных блоков. Перегородки – из кирпича. Пол первого этажа - пол по грунту. Чердачное перекрытие - деревянные балки. Крыша металлочерепица. Кровля – двускатая. Окна - металлопластиковые, выполненные по индивидуальному заказу.
Генплан застройки участка / Паспорт проекта 7000 руб / 10000 руб
Инженерный раздел (полный) 25000 руб
Смета на строительство 12500 руб
Теплотехнический расчет материалов стен Бесплатно
Стоимость проекта со незначительнми изменениями 43800 руб
Стоимость проекта со средними изменениями* 47400 руб
Стоимость проекта со значительными изменениями** 48300 руб

План первого этажа


Помещение — 11,80 кв м
Парилка — 6,76 кв м
Душевая — 5,01 кв м
С/у — 2,16 кв м
Комната — 15,99 кв м
Прихожая — 5,10 кв м
Баня с террасой Баня с террасой Баня с террасой Баня с террасой

Модификации проектов

Внесение изменений и привязка к участку строительства

В любой из проектов от компании VIPplan - Егорьевск по вашему желанию могут быть внесены изменения в материалы стен, материалы наружной отделки дома, а также будет произведена адаптация проекта под конкретный регион строительства (с учетом грунтов региона, геологических особенностей вашего участка и местных климатических условий) - БЕСПЛАТНО !!! (кроме проектов со скидкой и проектов наших партнеров).

Любой из проектов, размещенных на сайте egorevsk.vipplan.ru мы можем выполнить из требуемых вам строительных материалов: ячеистый бетон (газобетон, пеноблок), керамоблок, кирпич, шлакоблок, бетонный блок, дерево (брус, клееный брус), каркасная технология (деревянный каркас, металлокаркас (ЛСТК)).

Фасад дома и его наружную отделку так же возможно выполнить с применением различных облицовочных материалов: структурной штукатурки, (с утеплителем и без), сайдингом (пластиковый или металлосайдинг), фиброплитами, кирпича.

 
6 Избранные
проекты

Доставка проектов по России: Москва (Московская область), Санкт-Петербург (Ленинградская область), Краснодар, Ростов-на-Дону, Ставрополь, Сочи, Волгоград, Новосибирск, Белгород, Брянск, Воронеж, Саратов, Хабаровск, Астрахань, Нальчик, Владикавказ, Екатеринбург, Тюмень, Самара, Нижний Новгород, Казань, Пермь, Уфа, Челябинск, Красноярск, Ханты-Мансийск, Иркутск, Курган, Оренбург, Омск, Томск, Барнаул, Новокузнецк, Кемерово, Абакан, Чита, Якутск, Южно-Сахалинск, Петропавловск-Камчатский и страны ближнего зарубежья: Белоруссия, Украина, Казахстан