Добро пожаловать на http://vipplan.ru

Випплан Егорьевск - это тысячи проектов домов в нашем каталоге!

Вы всегда сможете найти для себя проект дома вашей мечты! Даже если этого не случилось, мы готовы в любую минуту предложить проект индивидуального дома.

Забыли пароль?
Вы еще не регистрировались?

Перейдите по ссылке ниже на страницу регистрации.

Регистрация...

Внимание!!!

В проектную документацию могут быть внесены изменения любой сложности, в соответствии в Вашими пожеланиями!

Полезные статьи

Виды бассейнов

В наше время, строительство бассейна на территории своего участка, не такая уж и роскошь. Выбор видов и стилей бассейна, на сегодняшний день, очень большой....

Выбор бригады строителей в Егорьевске

Перед началом строительства дома перед будущим хозяином загородной недвижимости в Московской области обозначится несколько вариантов: обратиться в строительную компанию, специализирующуюся на малоэтажном коттеджном строительстве, воспользоваться услугами частной бригады; строить самому "своими руками"....

Проекты домов и коттеджей > Каталог проектов домов > Одноэтажный дом с эркером, гаражом и террасой Vg1108

Одноэтажный дом с эркером, гаражом и террасой Vg1108

Одноэтажный дом с эркером, гаражом и террасой
Зарегистрируйтесь

Проект № Vg1108


Техническое описание
Общая площадь: 129.53 м2
Жилая площадь: 54.53 м2
Высота здания: 7.59 м
Размеры дома: 19.14м×9.54м
Кол-во комнат: 3
Цокольный этаж: нет
Гараж: нет
Мансарда: нет

Kонструкция
Фундамент: Свайно-ростверковый
Перекрытия: Деревянные
Материал стен: Газобетон

Архитектурный раздел
Конструктивный раздел
Инженерный раздел
АР+КР - 52 000 (Со скидкой 20%)
АР+КР+ИР - 97 500 (Со скидкой 50%)
Проект индивидуального одноэтажного жилого дома с размерами здания 19,14 x 9,54 м. Наружная отделка здания - металлосайдинг с покрытием ECOSTEEL (Экостил), фактура "камень". Цоколь - металлосайдинг с покрытием ECOSTEEL (Экостил), фактура "камень". Кровля - металлочерепица. Фундамент - свайно-ростверковый (буронабивной). Ростверк - монолитный ж/б . Наружные стены: газобетонные блоки, утеплитель - минеральная вата (в распор между обрешеткой), металлосайдинг с покрытием ECOSTEEL (Экостил), фактура "камень". К утеплителю пристрелить ветро-пароизоляционную мембрану. Внутренние стены и перегородки выполняются из газобетонных блоков. Отделка вентканалов и дымоходов - сайдинг. Перемычки - монолитные и сварные из профиля проката. Пол первого этажа - пол по грунту. Чердачное перекрытие - по деревянным балкам с использованием теплошумоизоляционных материалов типа "URSA" в межбалочном пространстве. Крыша многоскатная. Окна - металлопластиковые, выполненные по индивидуальному заказу.
Генплан застройки участка / Паспорт проекта 7000 руб / 10000 руб
Инженерный раздел (полный) 45500 руб (65000 руб)
Смета на строительство 32500 руб
Теплотехнический расчет материалов стен Бесплатно
Стоимость проекта со незначительнми изменениями 61750 руб
Стоимость проекта со средними изменениями* 71500 руб
Стоимость проекта со значительными изменениями** 74100 руб

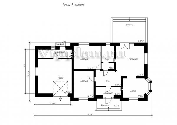
План первого этажа


Гараж — 31,35 кв м
Бойлерная — 7,64 кв м
Спальня — 14,35 кв м
Спальня — 17,13 кв м
С/у — 7,91 кв м
Гостиная — 23,05 кв м
Терраса — 18,90 кв м
Кухня — 12,54 кв м
Холл — 9,73 кв м
Прихожая — 5,83 кв м
Крыльцо — 5,32 кв м
Одноэтажный дом с эркером, гаражом и террасой Одноэтажный дом с эркером, гаражом и террасой Одноэтажный дом с эркером, гаражом и террасой Одноэтажный дом с эркером, гаражом и террасой

Модификации проектов

Внесение изменений и привязка к участку строительства

В любой из проектов от компании VIPplan - Егорьевск по вашему желанию могут быть внесены изменения в материалы стен, материалы наружной отделки дома, а также будет произведена адаптация проекта под конкретный регион строительства (с учетом грунтов региона, геологических особенностей вашего участка и местных климатических условий) - БЕСПЛАТНО !!! (кроме проектов со скидкой и проектов наших партнеров).

Любой из проектов, размещенных на сайте egorevsk.vipplan.ru мы можем выполнить из требуемых вам строительных материалов: ячеистый бетон (газобетон, пеноблок), керамоблок, кирпич, шлакоблок, бетонный блок, дерево (брус, клееный брус), каркасная технология (деревянный каркас, металлокаркас (ЛСТК)).

Фасад дома и его наружную отделку так же возможно выполнить с применением различных облицовочных материалов: структурной штукатурки, (с утеплителем и без), сайдингом (пластиковый или металлосайдинг), фиброплитами, кирпича.

 
6 Избранные
проекты

Доставка проектов по России: Москва (Московская область), Санкт-Петербург (Ленинградская область), Краснодар, Ростов-на-Дону, Ставрополь, Сочи, Волгоград, Новосибирск, Белгород, Брянск, Воронеж, Саратов, Хабаровск, Астрахань, Нальчик, Владикавказ, Екатеринбург, Тюмень, Самара, Нижний Новгород, Казань, Пермь, Уфа, Челябинск, Красноярск, Ханты-Мансийск, Иркутск, Курган, Оренбург, Омск, Томск, Барнаул, Новокузнецк, Кемерово, Абакан, Чита, Якутск, Южно-Сахалинск, Петропавловск-Камчатский и страны ближнего зарубежья: Белоруссия, Украина, Казахстан